2012年4月6日 星期五

春暉8號 The Signature 香港春暉臺8號



春暉8號 The Signature
春暉8號 The Signature



















春暉8號 The Signature

地址香港春暉臺8號最新銷售情況及價目表 春暉8號 The Signature
發展商 賣方:富利香港投資有限公司,控股公司─
新世界發展有限公司
培新控股有限公司
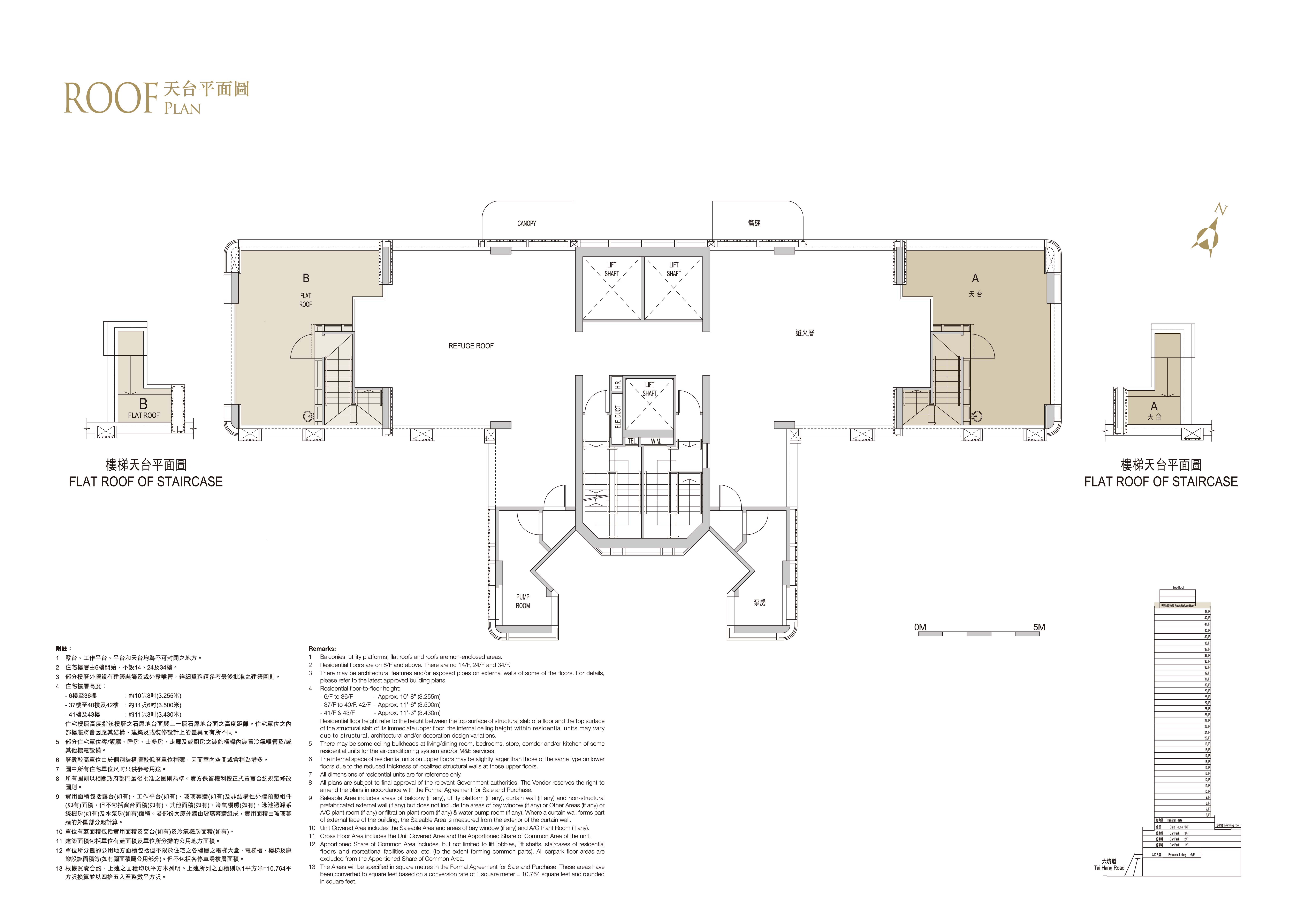
座數 1座
住宅層數 基座共5 層 (地下、1樓、2樓、3樓及5樓)
住宅共35層(住宅物業由6樓-43樓,不設14、24及34樓)
單位總數 66個(標準單位62 個,複式單位4 個)
單位間隔 詳情請參閱單位資料
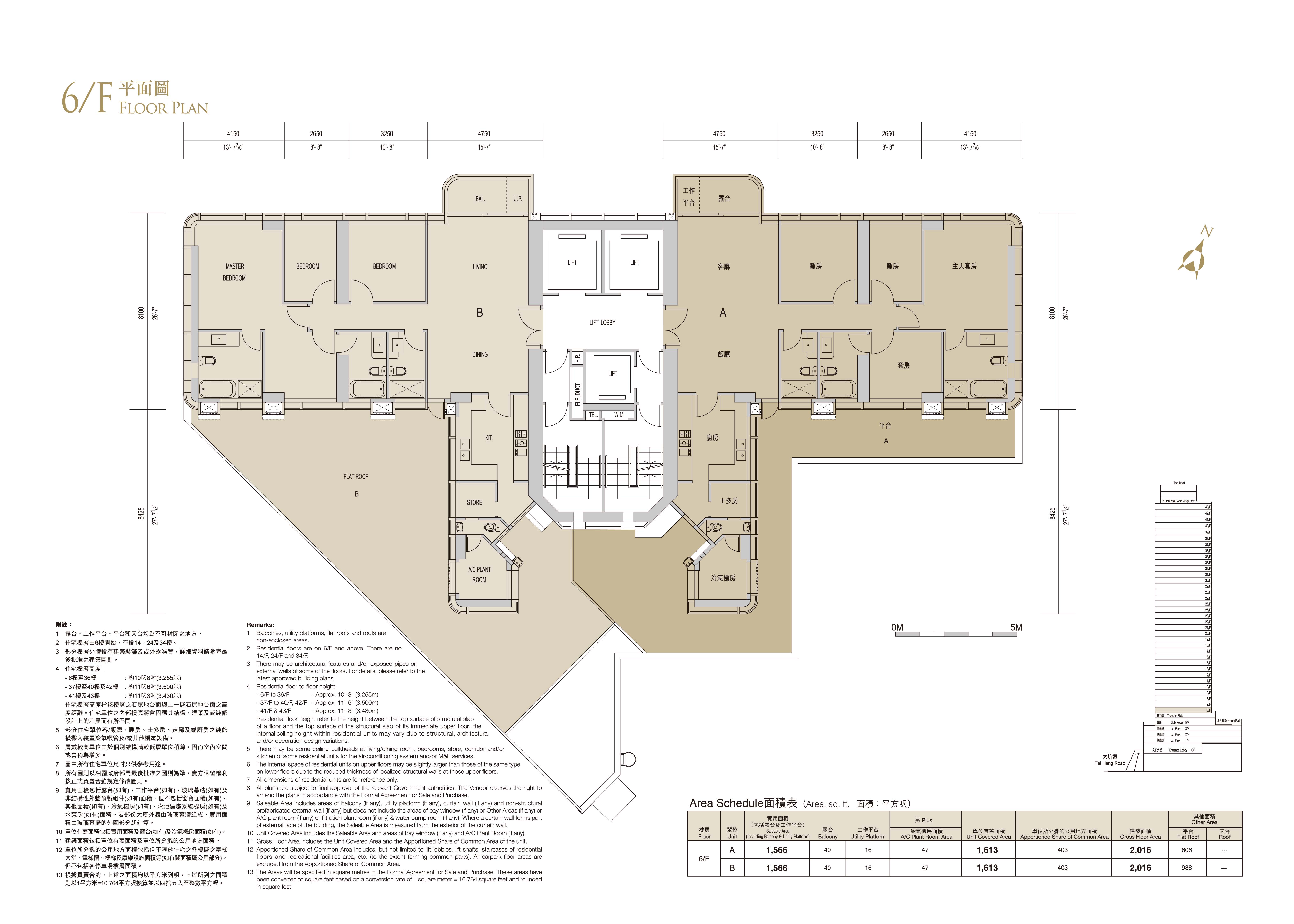
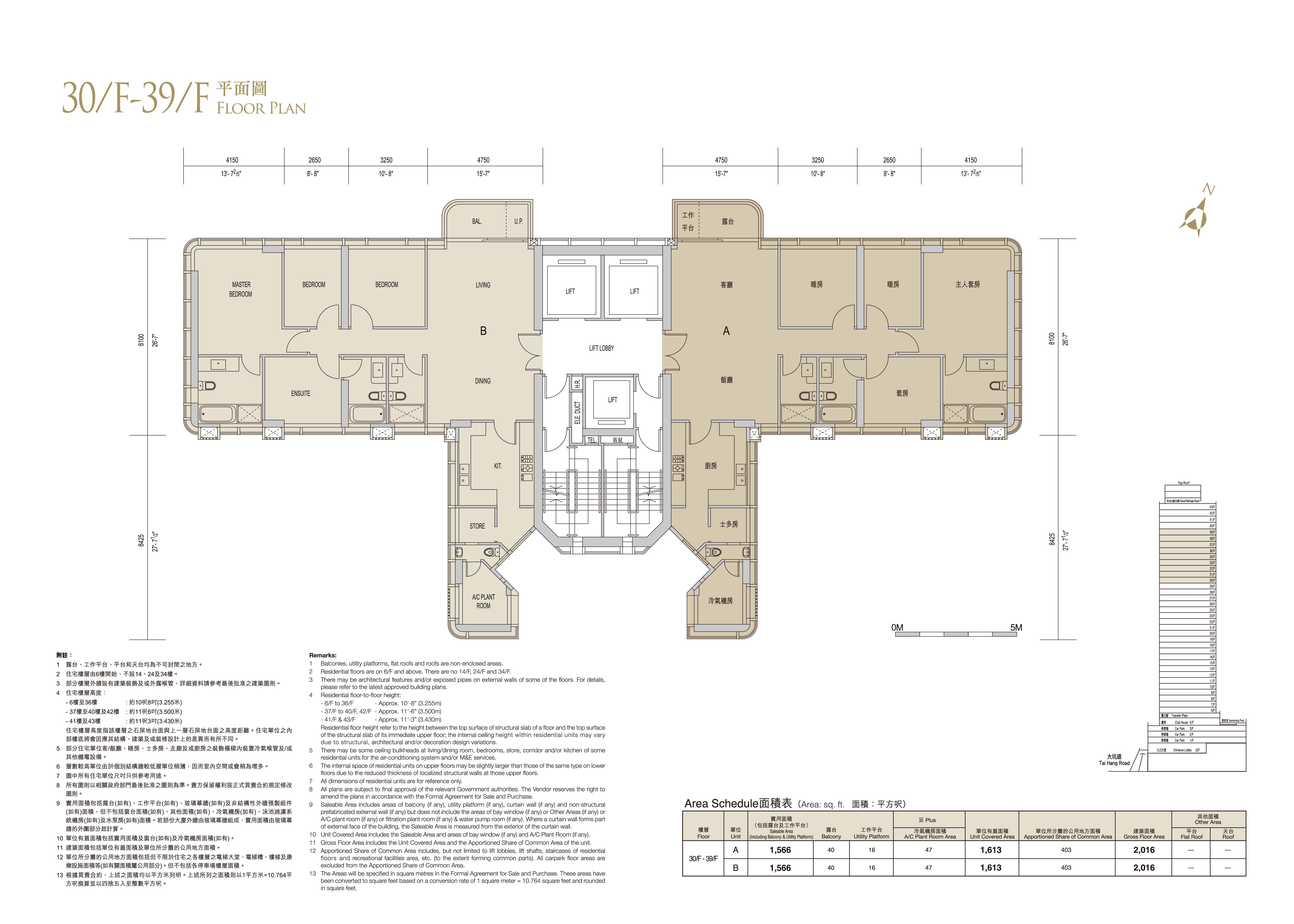
建築面積標準單位:建築面積2,016 呎 / 實用面積(包括露台及工作平台)1,566 呎
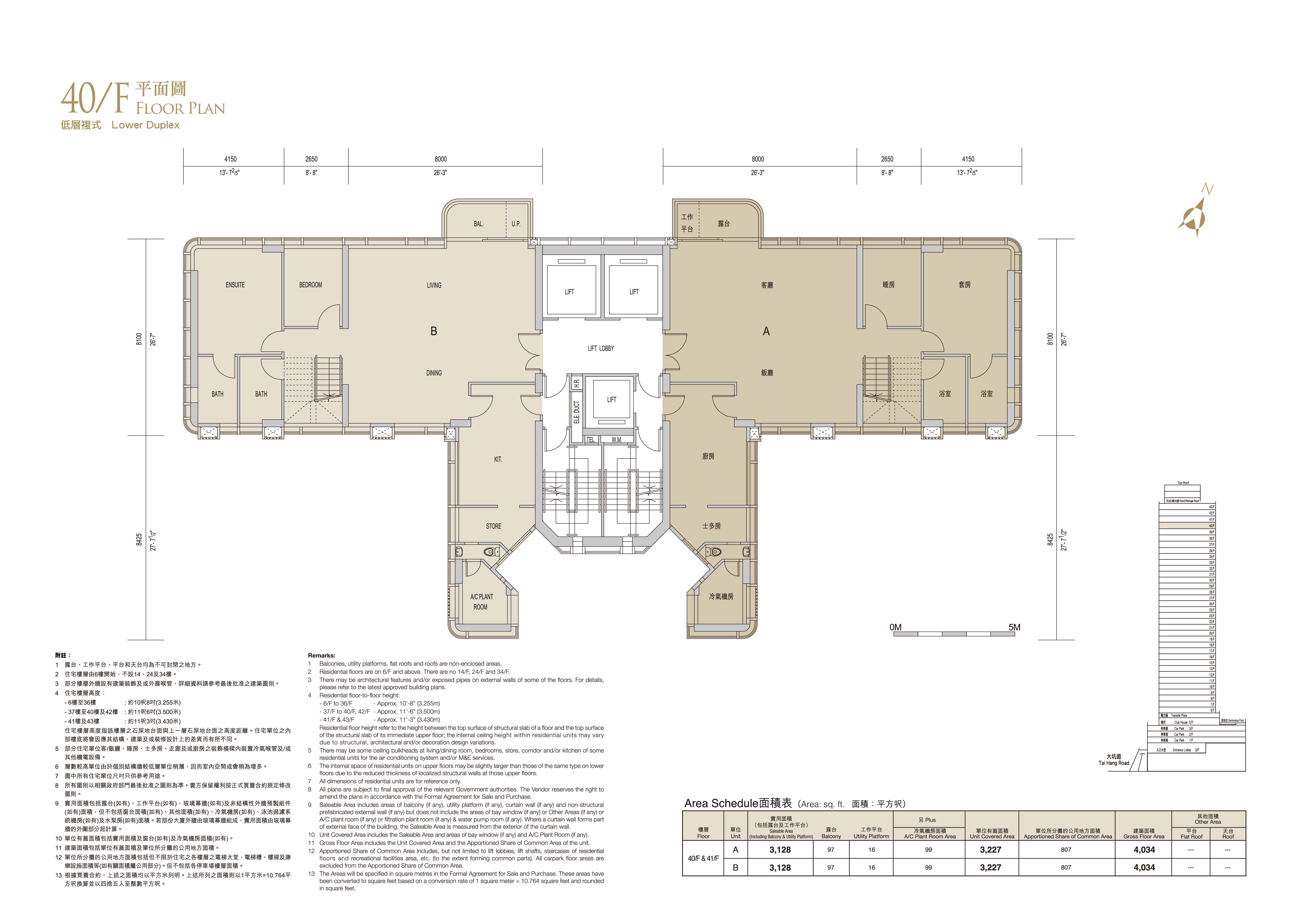
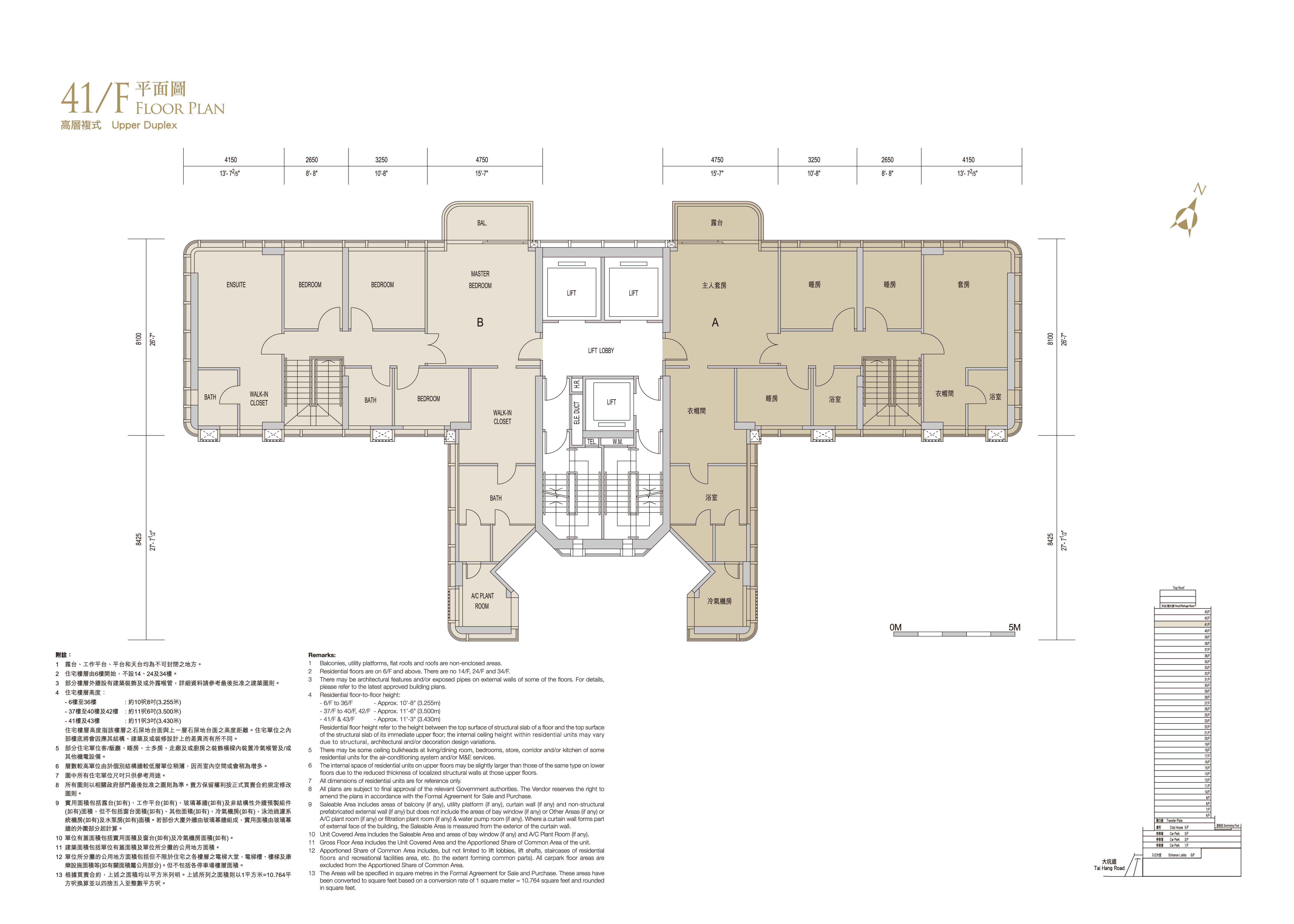
複式單位: 建築面積4,034 呎 / 實用面積(包括露台及工作平台)3,128 呎
物業設施游泳池、兒童池、日光曬台、健身室、多用途功能室、室內兒童遊樂場、
遊戲室、閱讀廊、男洗手間及更衣室、女洗手間及更衣室、桑拿室、戶外園藝花園等。
其他補充資料 賣方代表律師 : 姚黎李律師行
認可人仕 : 關永康
建築師 : 關黃建築師有限公司
融資人 : 新世界財務有限公司及Winteam Holdings Ltd.
提供建築經費以完成物業發展項目之銀行 : 中國銀行(香港)有限公司


銷售情況 Transactions Status (Can't Shown on Mobile Phone)


News on Sing Tao Daily



For More Details, Pls Call 82331333 or E-mail: gary82331333@gmail.com



樓層Floor
單位Unit
實用面積(包括露台及工作平台)Saleable Area(Including Balcony & Utility Platform)
露台Balcony
工作平台Utility Platform
另Plus
單位有蓋面積Unit Covered Area
單位所分攤之公用地方面積Apportioned Share of Common Area
建築面積Gross Floor Area
其他面積Other Area
天台Roof
平面圖
冷氣機房面積A/C Plant Room Area
平台Flat Roof
6/F
A
1566
40
16
47
1613
403
2016
606
-
平面圖
B
1566
40
16
47
1613
403
2016
988
-
7/F - 39/F
A
1566
40
16
47
1613
403
2016
-
-
平面圖平面圖
B
1566
40
16
47
1613
403
2016
-
-
40/F & 41/F
A
3128
97
16
99
3227
807
4034
-
-
平面圖平面圖
B
3128
97
16
99
3227
807
4034
-
-
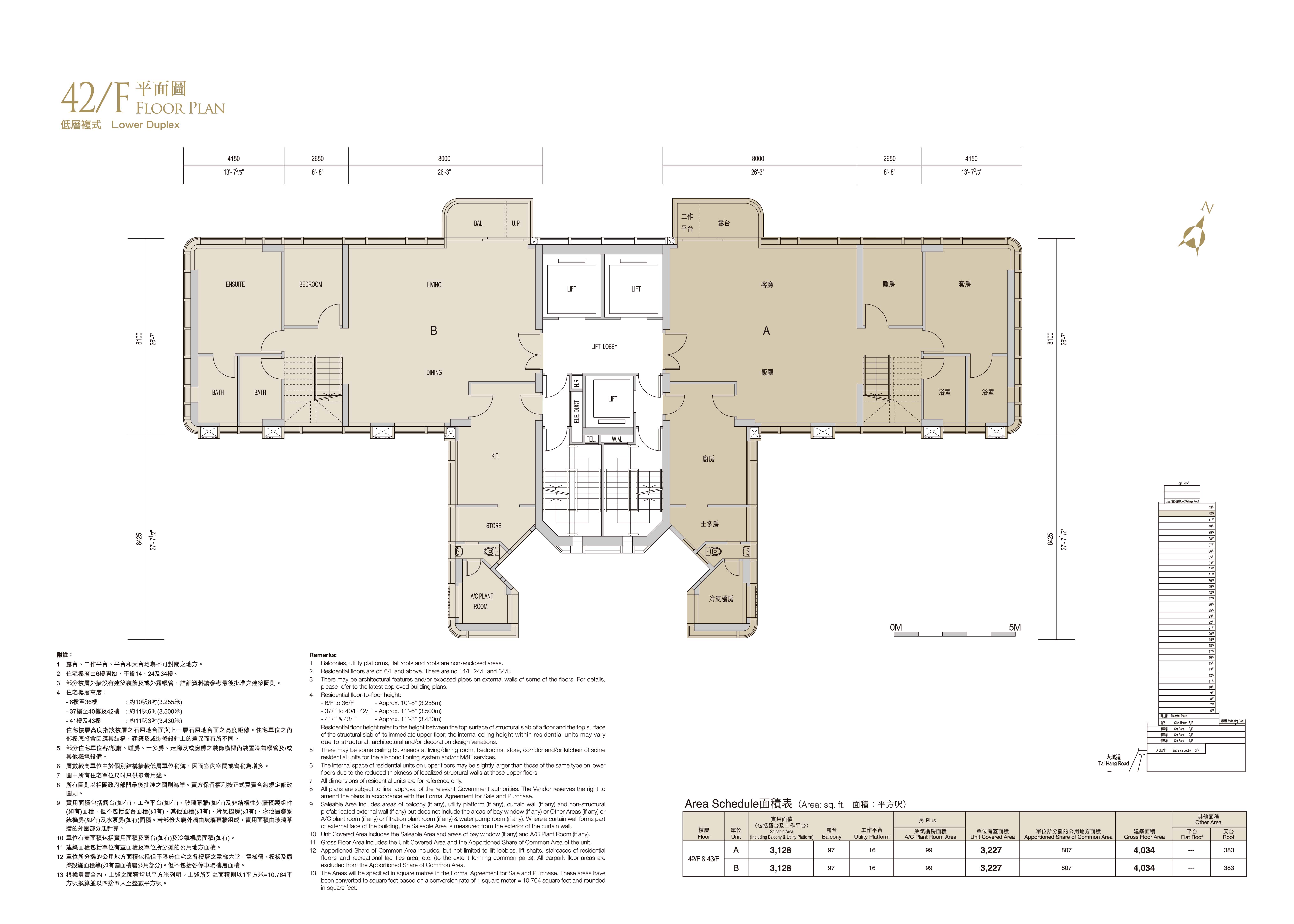
42/F & 43/F
A
3128
97
16
99
3227
807
4034
-
383
平面圖平面圖平面圖
B
3128
97
16
99
3227
807
4034
-
383



*********************************************************************************************************

Media News & Info:
*********************************************************************************************************


  15/2/2013 -10:59 物業買賣

春暉8號複式實呎4.64萬售



土地註冊處資料顯示,大坑春暉8號40、41樓B室複式單位,建築面積4034方呎,實用面積3128方呎,設平台及露台,連2個車位以1.45224億元,建築呎價3.6萬元,實用呎價4.64萬元,買家為李莎(LI SHA)。






*********************************************************************************************************


春暉8號(箭咀示)在未有大肆宣傳下,已速售約13伙,佔大廈總數近兩成。(部分陳靜儀攝)
春暉8號(箭咀示)在未有大肆宣傳下,已速售約13伙,佔大廈總數近兩成。(部分陳靜儀攝)



2012年04月06日 星期五



置業家居



春暉8號 低調推盤 速售13伙


撰文:張婉明、彭寶珍、甘潔瑩
欄名:封面故事

大坑區內亦有兩個新盤可供預約參觀,其中春暉8號在未有大肆宣傳下,已推出21個單位價單,面積一律2,016呎,樓層介乎6至36樓A、B室,訂價$4,051萬至$6,217.1萬,呎價$20,094至$30,839。項目共提供66個單位,標準單位共62伙,面積2,016呎,採4房2廳(連雙套房)設計;另設4個面積4,034呎複式戶。日前售出16及17樓A室,面積均為2,016呎,呎價逾$2萬。

據發展商網頁顯示,項目已落實成交約13宗,樓層介乎6至35樓,成交價介乎$4,020.5萬至$6,092.8萬。

至於由置地發展的上林,新近加推7個單位,其中2個分層戶平均呎價$2.25萬,另5個複式戶平均呎價$24,736。由即日起至復活節期間,買家可獲送車位1個,價值約$120萬至$150萬。1座A室複式戶買家可選用12個月特長成交期,若提早於90日內成交,可獲扣減樓價半成。項目尚餘30個單位待售,發展商計劃於4至6月再開放全新示範單位。


春暉8號示範單位地址︰港島春暉台8號

上林示範單位地址︰港島大坑道11號




春暉8號 - HKET PS

hket.com


沒有留言:

張貼留言